Измерители уровня многофункциональные ПРОМА-ИУ
Для непрерывного измерения уровня жидкости, отображения текущего значения в метрах и сигнализации о выходе параметра за установленные пределы и выдачей токового сигнала (4-20) мА.
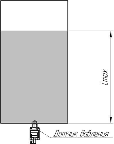
Поставляются в комплекте с датчиком давления ДДМ-03.
Используются для работы в системах автоматического контроля, регулирования и управления технологическими процессами в теплоэнергетике, системах водоснабжения и других отраслях.
Рабочая среда – неагрессивные жидкости.
Цена: по запросу
Преимущества:
- 2-х позиционное регулирование уровня.
- Управление насосом путем переключения релейного выхода при достижении максимального и минимального уровня жидкости.
- Формирование дискретных сигналов в систему коммутации при достижении 4-х устанавливаемых пределов уровней (2 – для управления насосом и 2 – для аварийной сигнализации).
- Измерение уровня жидкости различной плотности и его индикация на 4-х знаковом индикаторе (в метрах).
- Корректировка нулевого уровня. Непрерывное преобразование измеряемого значения уровня в унифицированный сигнал постоянного тока (4-20мА).
- Возможность программной настройки прибора в зависимости от применяемого датчика давления и плотности жидкости.
- Работа в сети MODBUS по стандарту RS-485 (до 32 приборов при 2-х проводной связи).
- Возможность прямой коммутации больших нагрузок – переключающиеся контакты реле (2А, 220В).
Основные технические характеристики ПРОМА-ИУ
| Предел допустимой основной погрешности, % | 1 |
| Напряжение питания | = 24В или ~ 220В, 50Гц |
| Потребляемая мощность, ВА | 2 |
| Индикация показаний | цифровое табло – 4 знакоместа |
| Выходной токовый сигнал аналоговый, мА | 4-20 |
| Погрешность токового сигнала, % | 1 |
| Количество уставок пределов давления | 4 |
| Зона уставок, % от диапазона | 0-100 |
| Дискретность уставок % от диапазона | 1 |
| Температура окружающей среды, °С | от -20 до +50 |
| Степень защиты (код IP) — щитовой лицевая панель / внутренняя часть — настенный |
IP54 / IP40 IP54 |
| Допустимая нагрузка на контакты реле при 220В, 50Гц или =30В, А | 2 |
| Габаритные размеры, мм: длина х ширина х высота — щитовой — настенный |
96х48х105 150х125х60 |
| Масса кг, не более | 0,5 |
Основные технические характеристики ДДМ-1
| Предел допустимой основной погрешности, % | 0,5 |
| Значения выходного сигнала постоянного тока, мА: (код 42) | 4-20 |
| Напряжение питания, постоянный ток, В: | 18-35 |
| Нагрузочное сопротивление датчика с выходным сигналом (4-20)мА, Ом: — при питании постоянным током напряжением 24В — температура окружающей среды, °С |
0-500 от -30 до +55 |
| Дополнительная температурная погрешность на каждые 10°С изменения температуры в пределах рабочего диапазона, %, не более |
0,2 |
| Потребляемая мощность, Вт, не более | 0,8 |
| Степень защиты (код IP) | IP54 |
| Габаритные размеры, мм: длина х диаметр | 80 х 32 |
| Масса, кг, не более | 0,2 |
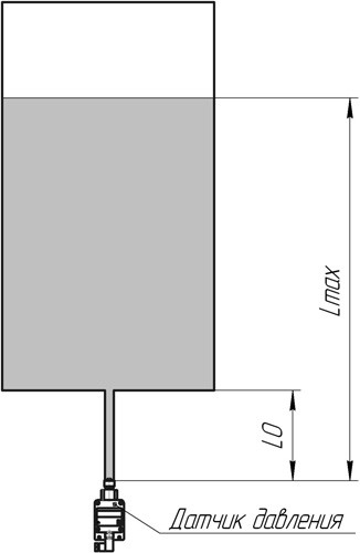
Корректировка нулевого уровня


Lв = Lmax + L0 , при L0<0
Lв = Lmax – L0 , при L0>0
L0 – корректировка нулевого уровня жидкости (вводится программно на Прома-ИУ);
Lmax – максимальный уровень жидкости.
Диапазоны измерений (для воды) с датчиками давления ДДМ-1
| Уровень воды Lв, в метрах | 0 – 4,0 | 0 – 6,0 | 0 — 10 | 0 – 16 | 0 – 25 | 0 – 40 |
| Тип первичного датчика | ДДМ-1-40 | ДДМ-1-60 | ДДМ-1-100 | ДДМ-1-160 | ДДМ-1-250 | ДДМ-1-400 |
Схема внешних подключений
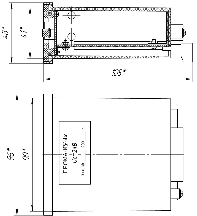
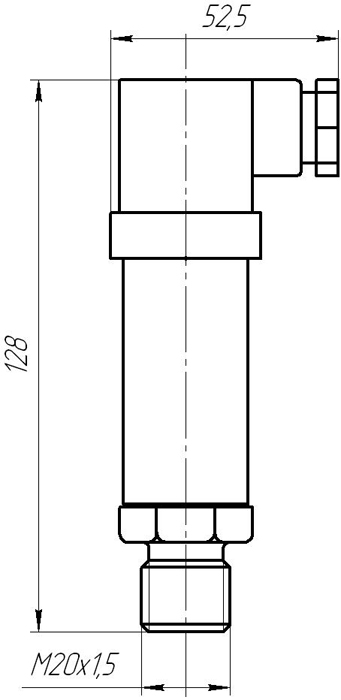
Габаритные и установочные размеры
| ПРОМА-ИУ-4х-Н | ![]() |
| ПРОМА-ИУ-4х-Щ | ![]() |
| ДДМ-03 | ![]() |
| Вариант |
ПРОМА-ИУ-4х-Н ,ПРОМА-ИУ-4х-Щ ,ДДМ-03 |
|---|





