Горелки газовые ГГ-1; ГГ-2; ГГ-3
Горелки газовые типа ГГ предназначены для сжигания газообразного топлива в топках паровых и водогрейных котлов:
— ГГ-1, ГГ-2 для сжигания природного газа в топках паровых котлов типа Е-1-9 Г, Е-1,6-9ГМН, Е-2,5-9 ГМ
— ГГ-3 для сжигания природного газа в топочных камерах паровых и водогрейных котлов мощностью до 3МВт.
Цена: по запросу
Это оборудование отличается простотой и неприхотливостью в использовании, по тем же причинам оно является весьма надежным. Так как в них практически нечему ломаться, они эксплуатируются на объектах десятками лет без замены. При разработке этих горелок требования к их автоматизации были минимальными. По умолчанию в их состав не входило никакого дополнительного навесного оборудования.
С течением времени производитель стал предлагать различные варианты комплектности оборудования. Сегодня их можно приобрести как без элементов автоматики, так и укомплектовать оборудование полным комплектом автоматики в состав которого входит и запальная горелка в составе ЗЗУ, и отдельно стоящий пульт управления, и газовый блок с клапанами. Комплектация данного оборудования системой автоматики привлекло интерес со стороны не только котельных, где данные газовые горели использовались на котлах определенной серии.
Сегодня ГГ используются и на специальных технологических печах и сушильных барабанах в различных отраслях.
Основные технические характеристики
| Наименование | ГГ-1 | ГГ-2 | ГГ-3 |
|---|---|---|---|
| Номинальная тепловая мощность горелки, МВт | 1,1 (+0,11/-0,05) |
2,2 (+0,22/-0,11) |
3,5 (+0,35/-0,17) |
| Коэффициент рабочего регулирования, не менее | 4 | ||
| Номинальное разрежение в камере горения (топке), Па | 20±20 | 20±10 | |
| Номинальное давление газа перед горелкой, кПа | 1,22±0,24 | 3,15±0,63 | 2,5±0,3 |
| Температура газа перед горелкой, oС | от 0 до 40 | ||
| Номинальный расход природного газа при Qpн = 33,3 МДж/м3 (7960 ккал/м3), м3/ч | 119 | 238 | 378 |
| Длина факела при номинальной тепловой мощности, м, не более: | 1,3 | 2,5 | 2 |
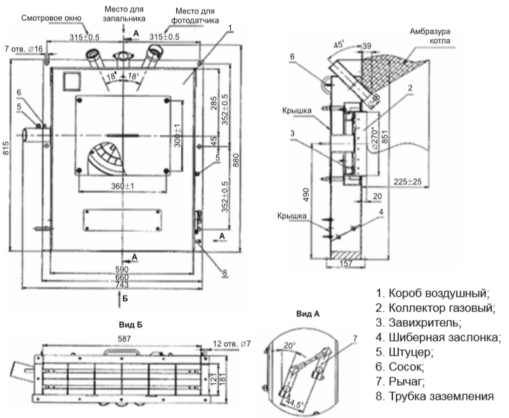
| Габаритные размеры, мм, не более: | |||
| — длина | 181 | 181 | |
| — ширина | 743 | 743 | |
| — высота | 880 | 880 | |
| Масса, кг, не более | 40 | ||
Габаритные размеры
| Вариант |
ГГ-1 ,ГГ-2 ,ГГ-3 |
|---|

