Клапана электромагнитные КЭГ
Для перекрытия трубопроводов газа, жидкостей, топлива в системах с дистанционным управлением.
Используются в схемах автоматического розжига, регулирования и защиты котлов, теплогенераторов, отопительных установок, для управления потоком газа или жидкого топлива.
Цена: по запросу
Основные технические характеристики КЭГ
|
Условный проход, Ду, мм |
10 |
15 |
20 |
25 |
32 |
40 |
50 |
||||
|
Обесточенное положение |
НЗ |
НЗ/НО |
НЗ |
||||||||
|
Давление рабочее, Рраб , МПа |
0,25 |
||||||||||
|
Номинальная потребляемая мощность, Вт (не более) |
15 |
30 |
|||||||||
|
Рабочая среда |
воздух, нейтральные газы, природные газы, смесь типа пропан-бутан, дизельное топливо, жидкости |
||||||||||
|
Температура рабочей среды, °С |
от — 5 до + 60 |
||||||||||
|
Материал уплотнения |
NBR |
||||||||||
|
Напряжение управления электромагнитом |
~220/50Гц |
||||||||||
|
Исполнение клапана по направлению движения рабочей среды на входе и выходе |
проходной |
||||||||||
|
Присоединение к источнику напряжения / управления |
DIN43650 |
||||||||||
|
Положение клапана на трубопроводе |
вертикальное |
||||||||||
|
Условия эксплуатации |
У3 по ГОСТ 15150 |
||||||||||
|
Степень защиты, (код IP) |
IР65 |
||||||||||
|
Класс защиты |
01 |
||||||||||
|
Класс герметичности по ГОСТ 9544 |
А |
||||||||||
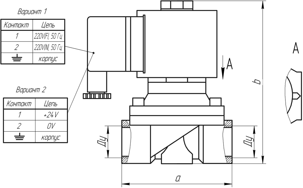
Габаритные и установочные размеры
| Наименование | Думм | Присоединение к трубопроводу | Габаритные размеры ( axb ) |
| КЭГ-15 | 15 | Муфтовое 1/2” | 69х117 |
| КЭГ-20 | 20 | Муфтовое 3/4” | 73х123 |
| КЭГ-25 | 25 | Муфтовое 1” | 99х135 |
| КЭГ-32 | 32 | Муфтовое 11/4” | 112х175 |
| КЭГ-40 | 40 | Муфтовое 11/2” | 123х175 |
| КЭГ-50 | 50 | Муфтовое 2” | 168х209 |
| КЭГ-20-НО | 20 | Муфтовое 3/4” | 73х123 |

