Впускные и выпускные вентиляционные решетки KIPVENT
Предназначены для организации принудительной вентиляции шкафов управления и электрощитов с целью поддержания допустимого для электронного оборудования температурного режима.
Цена: по запросу
Предназначены для организации принудительной вентиляции шкафов управления и электрощитов с целью поддержания допустимого для электронного оборудования температурного режима.
Необходимость в принудительной вентиляции шкафа или электрощита возникает, когда в нем смонтировано оборудование, выделяющее большое количество тепла, например: блоки питания, твердотельные реле, преобразователи частоты и т.д. Кроме вентиляции и охлаждения вентиляторы KIPVENT дополнительно выполняют фильтрацию воздуха, нагнетаемого внутрь шкафа. Это предотвращает скопление пыли и её попадание внутрь приборов.
Некоторые правила использования вентиляторов и решеток серии KIPVENT:
- Используйте впускные решетки с вентиляторами и выпускные решетки, когда температура воздуха снаружи ниже, чем температура внутри шкафа. В этом случае применение решеток и вентиляторов будет наиболее экономичным и эффективным.
- Используете впускную решетку с вентилятором для нагнетания воздуха внутрь шкафа, а не наоборот, тогда из-за создаваемого в шкафу избыточного давления весь объем воздуха будет проходить исключительно через фильтрующие элементы.
- Устанавливаете впускную решетку с вентилятором в нижней трети шкафа, а выпускную решетку в верхней трети как можно выше. Это будет способствовать естественной конвекции воздуха, предотвратит скопление теплого воздуха выше вентилятора и исключит появление локальных зон перегрева.
- Обеспечьте свободный доступ воздуха к впускным и выпускным решеткам шкафа, чтобы излишнее тепло беспрепятственно могло быть передано из шкафа в окружающую среду.
Технические характеристики впускных решеток с вентиляторами серии KIPVENT
| Параметр | Значение параметра | ||||
| Фото | ![]() |
![]() |
![]() |
![]() |
![]() |
| Модификация | KIPVENT-100.01.230 | KIPVENT-200.01.230 | KIPVENT-300.01.230 | KIPVENT-400.01.230 | KIPVENT-500.01.230 |
| Напряжение питания | 230 VAC | ||||
| Частота питающей сети | 50/60 Гц | ||||
| Мощность | 18 Вт | 14,5 Вт | 21 Вт | 45 Вт | 45 Вт |
| Потребляемый ток | 8 мА | 8 мА | 135 мА | 320 мА | 190 мА |
| Электрическое подключение | Разъем Faston серии 0,110″ (наконечники поставляются в комплекте) | ||||
| Свободная подача воздуха | 28 м3/ч | 66 м3/ч | 120 м3/ч | 265 м3/ч | 600 м3/ч |
| Подача воздуха в комбинации с выпускной решеткой | 24 м3/ч | 55 м3/ч | 105 м3/ч | 230 м3/ч | 550 м3/ч |
| Макс. статическое давление | 29 Па | 61 Па | 86 Па | 115 Па | 176 Па |
| Поверхностная плотность фильтра | 150 г/м2 | ||||
| Класс фильтра (DIN 779) | G2 | ||||
| Уровень шума (DIN 45 635) | 39 дБА | 49 дБА | 49дБА | 56 дБА | 61 дБА |
| Тип подшипника | Подшипник качения | ||||
| Степень защиты | IP 54 | ||||
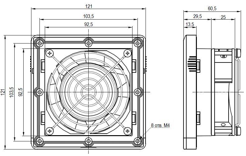
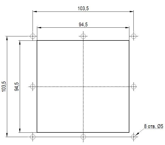
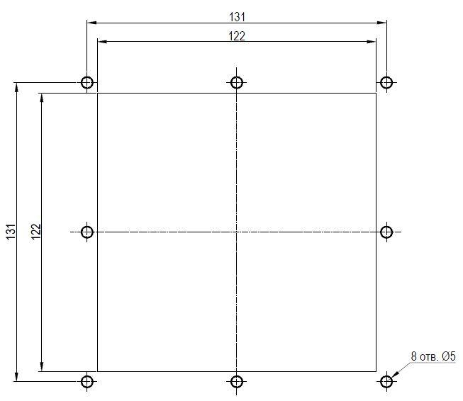
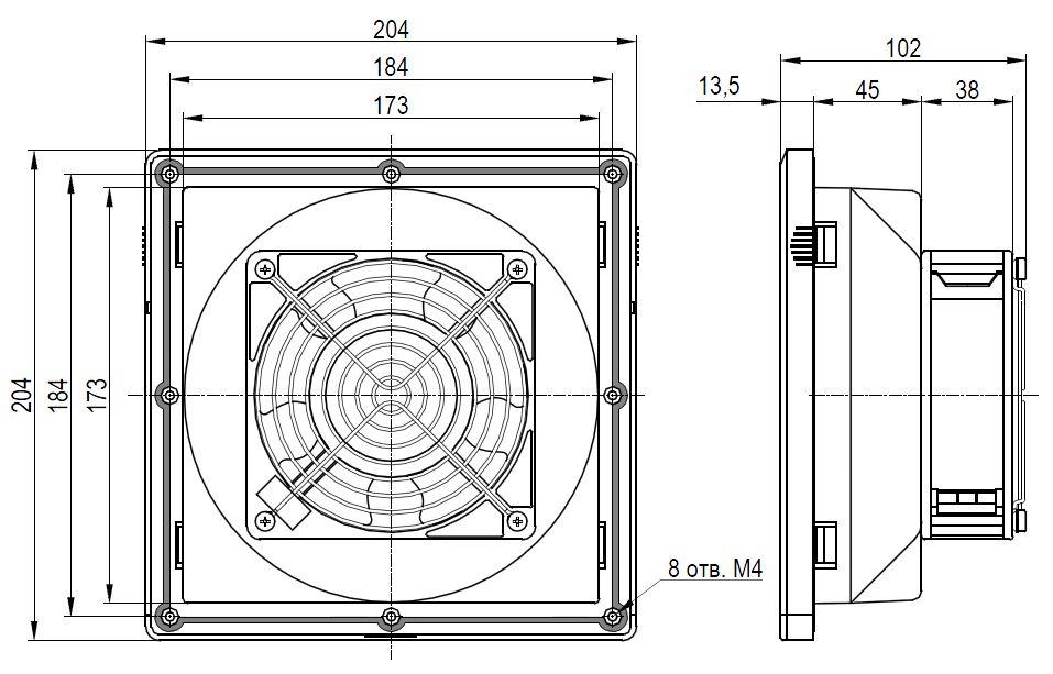
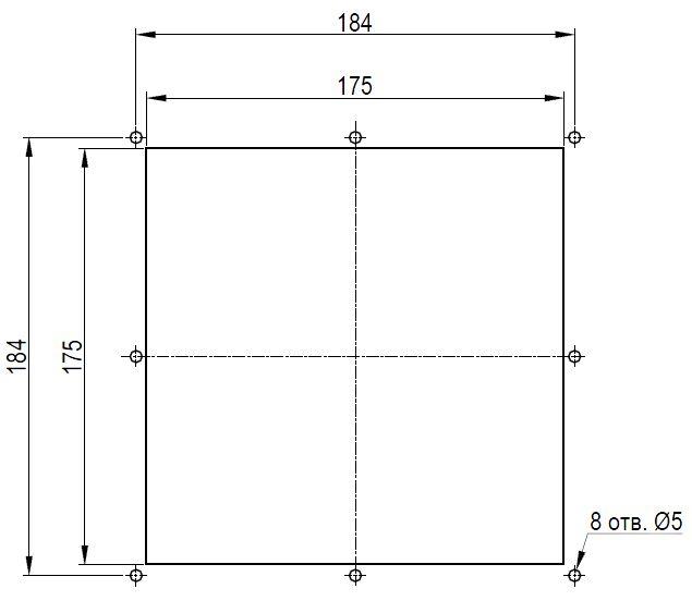
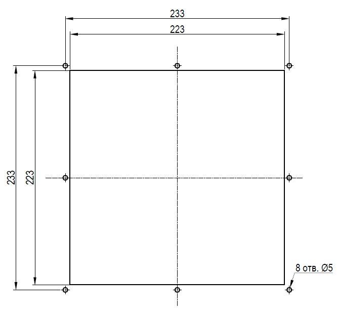
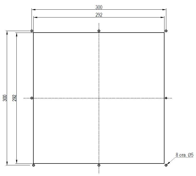
| Габаритные размеры | 121х121х60,5 мм | 148,5х148,5х73,5 мм | 204х204х103 мм | 255х255х115 мм | 322х322х130 мм |
| Размер выреза | 92,5х92,5 мм | 124х124 мм | 177х177 мм | 224х224 мм | 292х292 мм |
| Масса | 0,4 кг | 0,62 кг | 0,77 кг | 1,5 кг | 2,8 кг |
| Материал | Не поддерживающий горение ABS-FR пластик, категория воспламеняемости V0 согласно UL94 | ||||
| Цвет | RAL7035 | ||||
| Рабочая температура | -20…+60 °C | ||||
| Температура хранения | -40…+70 °C | ||||
Технические характеристики выпускных решеток серии KIPVENT
| Параметр | Значение параметра | ||||
| Фото | ![]() |
![]() |
![]() |
![]() |
![]() |
| Модификация | KIPVENT-100.01.300 | KIPVENT-200.01.300 | KIPVENT-300.01.300 | KIPVENT-400.01.300 | KIPVENT-500.01.300 |
| Поверхностная плотность фильтра | 150 г/м2 | ||||
| Класс фильтра (DIN 779) | G2 | ||||
| Степень защиты | IP 54 | ||||
| Габаритные размеры | 121х121,5х29,5 мм | 148,5х148,5х29,5 мм | 204х204х29,5 мм | 255х255х30 мм | 322х322х26,5 мм |
| Размер выреза | 92,5х92,5 мм | 124х124 мм | 177х177 мм | 224х224 мм | 292х292 мм |
| Масса | 0,07 кг | 0,16 кг | 0,29 кг | 0,43 кг | 0,66 кг |
| Материал | Не поддерживающий горение ABS-FR пластик, категория воспламеняемости V0 согласно UL94 | ||||
| Цвет | RAL7035 | ||||
| Рабочая температура | -20…+60 °C | ||||
| Температура хранения | -40…+70 °C | ||||
Характеристики вентиляторов в координатах «давление/расход»
![]() |
| KIPVENT-100.01.230 |
![]() |
| KIPVENT-100.01.230 |
![]() |
| KIPVENT-300.01.230 |
![]() |
| KIPVENT-400.01.230 |
![]() |
| KIPVENT-500.01.230 |
Габаритные и установочные размеры впускных решеток с вентиляторами и выпускных решеток серии KIPVENT
Купить вентиляционные решетки KIPVENT в Перми можно в компании БРИКО Автоматик.
| Бренд |
|---|






























